“自社施工だから成せる”
細やかなご提案
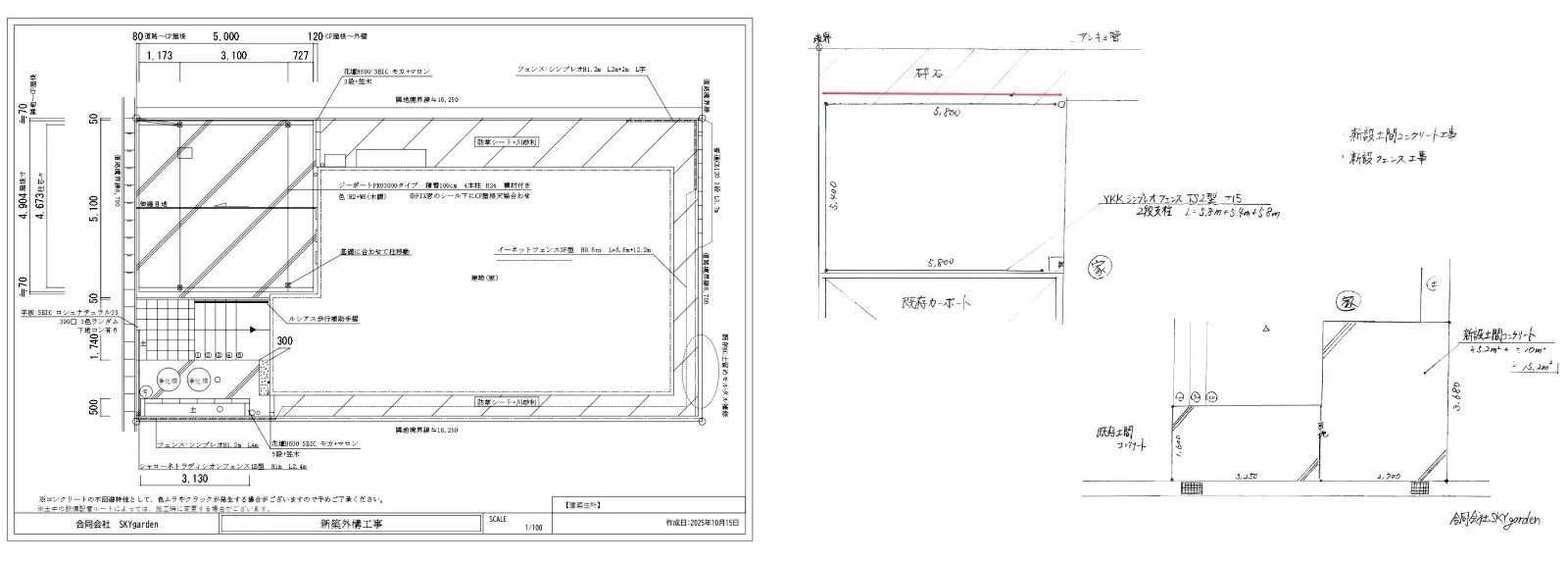
私たちは現場調査後、御見積と図面を作成しております。
図面を描く事でお客様との意思疎通を図っており精度の高い施工を実現しております。
家族を迎え、日々を見守る大切な場所だからこそ、デザインと機能性のどちらも大切に。
ご要望やライフスタイルに寄り添いながら、心地よく、長く愛せる空間をご提案します。

お客様に寄り添う柔軟な対応
トータルでのお任せも、一部分だけの施工も可能です。私たちはお客様のご要望を丁寧にお伺いし、納得いただけるまでじっくりと打ち合わせを重ねます。「なんとなくこうしたい」というイメージも一緒に言葉にしながら、理想の外まわりを形にしていくことを大切にしています。

安心を支える実績と技術力
10年以上の豊富な施工実績と、自社施工による確かな技術力で幅広い現場に対応しています。配管や法規制など制約の多い場所でも、ルールを守りつつ工夫を凝らし、お客様の理想を最大限実現する力があります。積み重ねた経験と柔軟な発想で、安心して長くお使いいただける外構づくりをご提供します。

暮らしを見据えたデザイン提案
私たちは“つくって終わり”の施工ではありません。光の差し込み方や植栽の成長など、完成後の暮らしを思い描きながら設計・提案を行います。数年先も快適で心地よいと感じていただけるように、日々の暮らしに寄り添う外構デザインを心がけています。暮らしの中に溶け込む外まわりを一緒につくりましょう。

総合力と利便性の高さ
フェンスや壁をはじめ、カーポートやお庭など幅広いエクステリアに対応できる総合力が強みです。デザイン性と機能性を兼ね備え、おしゃれさと安心の両立を叶えます。また、クレジットカード決済も可能で、お支払い方法も柔軟に対応。ご依頼から完成まで安心して任せられる環境を整えているのも、多くのお客様に選ばれる理由のひとつです。

中間マージン完全排除による
コスト管理
独自の施工体制により、品質を落とすことなく適正価格での工事を可能にしています。直接契約によって中間コストを抑え、必要な費用を現場に還元。職人の技術とこだわりを活かした施工で、安定した品質を維持しています。

施工の流れ
- お問い合わせ
-
お電話またはお問い合わせフォームにてお問い合わせください。
Tel:090-2419-1628 (9:00~19:00)
- ヒアリング・現地調査 (無料)
日程調整させていただきまして、現地へ伺います。敷地形状、方角、寸法、高低差、近隣状況等を確認します。 ご不明点や心配な点などはなんでもお聞かせてください。
- お見積り・資料提示 (無料)
現地調査をもとに、お見積り書を作成いたします。その際、最適なご提案を資料をもとにご説明させていただきます。
- ご契約・工事 ※ 場合によって着工金あり
ご契約後、工事日程を決定し着工してまいります。完成目途は工事内容によって異なります。
- お支払い
お支払いはクレジットカード決済、銀行振込に対応しておりますので、お気軽にご相談ください。 先に着工金をいただいている場合は、完成金のみお支払いいただきます。